Zum Hauptinhalt springen

Leistungsphase 9

Ausführungsplanung

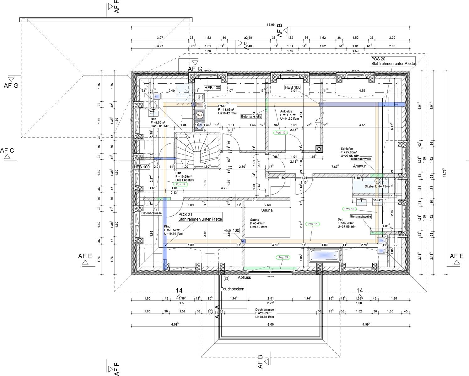
Die Ausführungsplanung ist als eine Art Bauanleitung zu sehen, in der viele Maße und Details skizziert werden, damit auf der Baustelle auch alles ordnungsgemäß umgesetzt wird. Komplizierte Elemente wie ein Flachdach, Balkone, Gauben usw. werden gezeichnet und um Angaben für die Handwerker ergänzt.